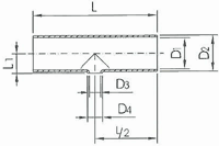
Szûkítõk

Csõszûkítõk



Koncentrikus szûkítõ
DIN 11852



Excentrikus szûkítõ
DIN 11854



 

T-szûkítõk


 

 

3300 Eger Váci Mihály út 93., E-mail: mobilkorr@gmail.com
Design: Doratti Grafikai Stúdió >>
>